【功能改造】心宿
更新時間:2022-11-25
| 設計風格 | 現代極簡奶油風 | 戶型案例 | 三室 | 案例面積 | |
|---|---|---|---|---|---|
| 樓盤名稱 | 所在城市 | 江蘇-丹陽 | 案例造價 | ||
| 設計師 | 趙亞浩 | ||||

案例說明:
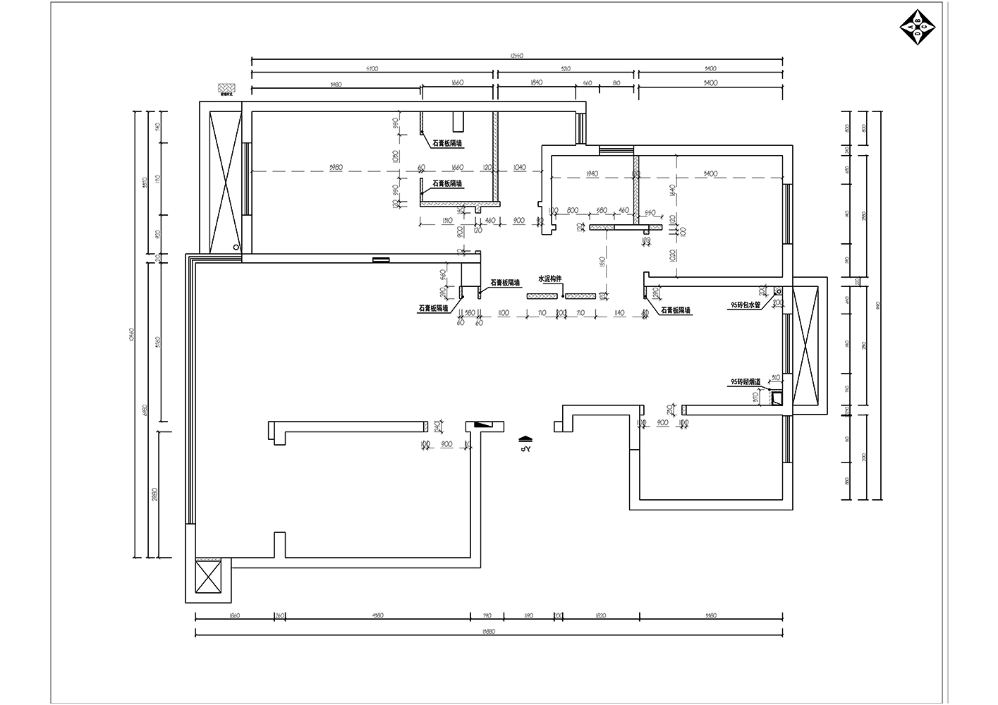
本案戶型缺陷:1、業主家有一兒一女,雖然有兩個衛生間,功能分配并不合理。
2、廚房較小、用餐區正對衛生間門
為此,設計師在功能分區時進行了如下調整:
1、將兩個衛生間重新分配,改成三個獨立的功能區,滿足了一家四口淋浴、坐便、洗漱的正常使用
2、拆除廚房門墻,用推拉門將廚房與用餐區隔斷,增加了餐廚區空間延展性;衛生間重新分配后,洗漱區隔斷恰好解決了用餐區正對衛生間門的情況
通過設計師對格局及功能分區的調整,主臥面積擴大,增加了衣帽間,將客廳與男孩房的陽臺打通,整個空間動線明確,區域劃分更加合理。
業主喜歡簡單溫馨,所以本案風格為現代極簡奶油風。
以淡奶油色為基調,大量的圓弧曲線在室內以不同的方式進行呈現,既隔斷了空間,處理了頂上的大梁,又能在造型上展現不一樣的美。搭配簡單的線條畫,給人簡單高級的感覺。
整體空間舍棄了大理石,木飾面,硬包等貴重材質,以石膏板和特殊新型材料做一些簡單的設計造型,用軟膜線性燈、天際燈、軌道燈、垂線進行搭配,滿足每個空間對燈光的需求。
奶油暖色調,搭配綠色家族——透明亞克力的綠色椅子,牛油果綠色的單人沙發,小清新綠的kaws公仔,衛生間干區復古墨綠色的瓷磚,給人暖暖的、奶呼呼的感覺。簡單舒適,適合居住,心之歸宿。
同風格案例:更多>>
同面積案例:




















京公網安備 11010802032436號