【黃石】大橋一品園
更新時間:2019-03-26
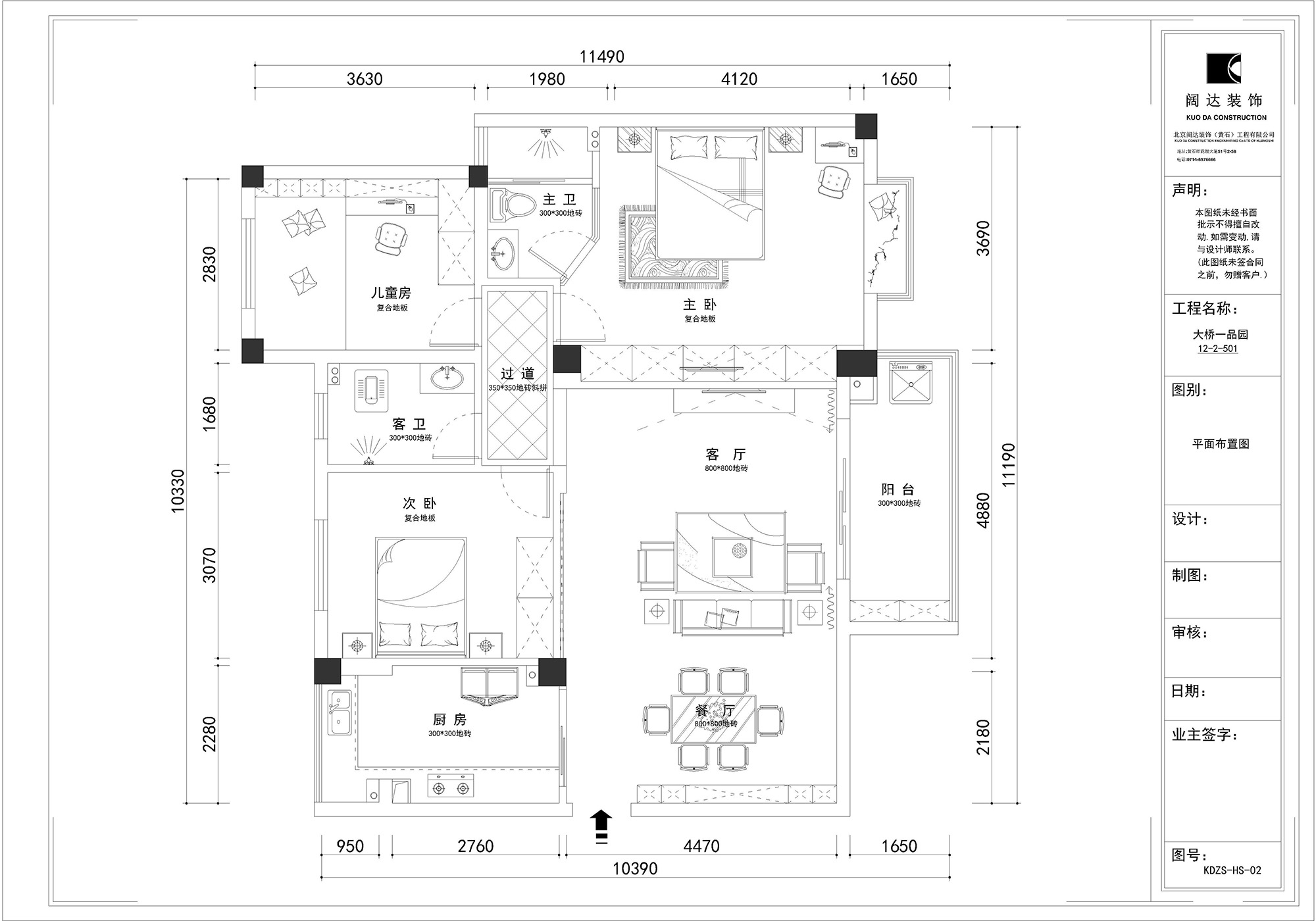
| 設計風格 | 簡約 | 戶型案例 | 三室兩廳一廚兩衛 | 案例面積 | 127 |
|---|---|---|---|---|---|
| 樓盤名稱 | 大橋一品園 | 所在城市 | 黃石市 | 案例造價 | 30萬 |
| 設計師 | 桂偉 | ||||

案例說明:
本案例采用現代簡約風格裝修,業主是一對年輕小夫妻,還有一個乖巧的小女孩,常住人口為三人,父母偶爾過來幫忙帶下小孩。比較喜歡年輕活躍的生活節奏,采用現代風格元素,打造一個溫馨的居住環境。客餐廳一體的表現方式,把整個空間的通透靈活的展現出來。
同風格案例:更多>>
同面積案例:












京公網安備 11010802032436號